寬槽型振動給煤機簡介
振動給煤機是一種集活化疏松物料功能和均勻定量給料功能于一體、為防止煤倉蓬煤、堵煤而設計的一種振動給料設備。振動給煤機用于把原煤及粉煤從貯料倉均勻或定量給到受料設備中。GZGKM寬槽型振動給煤機是選煤廠振動篩或跳汰機前給料的一種節能型給煤機。寬槽型振動給煤機特點及應用
GZGKM寬槽型振動給煤機由振動電機直接驅動、結構簡單緊湊、便于窄小空間布置安裝;給煤連續均勻,配用電控箱,可實現給煤量的任意調節。GZGKM寬槽型振動給煤機應用于煤炭、冶金、建材、化工、輕工等行業的篩前給料或者有布料要求的工藝中。

技術參數
| GZGKM-120 | GZGKM-160 | GZGKM-180 | GZGKM-200 | GZGKM-220 | GZGKM-280 | GZGKM-320 | ||
給料機寬度(mm) | 1200 | 1600 | 1800 | 2000 | 2200 | 2800 | 2300 | ||
給料粒度(mm) | 0-120 | 0-120 | 0-120 | 0-120 | 0-120 | 0-120 | 0-120 | ||
給料量(t/h) | 100-150 | 100-175 | 100-200 | 15-225 | 150-250 | 200-300 | 200-350 | ||
功率(kw) | 2×1.50 | 2×1.50 | 2×2.20 | 2×2.20 | 2×2.20 | 2×3.70 | 2×3.70 | ||
電機型號 | YZO-20-6 | YZO-20-6 | YZO-30-6 | YZO-30-6 | YZO-30-6 | YZO-50-6 | YZO-50-6 | ||
振頻(Hz) | 16 | 16 | 16 | 16 | 16 | 16 | 16 | ||
振幅(mm) | 4-6 | 4-6 | 4-6 | 4-6 | 4-6 | 4-6 | 4-6 | ||
安裝傾角 | 0°-10° | 0°-10° | 0°-10° | 0°-10° | 0°-10° | 0°-10° | 0°-10° | ||
總重(kg) | 800 | 920 | 1200 | 1370 | 1480 | 1800 | 1970 |
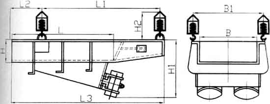
外形圖:
外形尺寸(mm)
| GZGKM-120 | GZGKM-160 | GZGKM-180 | GZGKM-200 | GZGKM-220 | GZGKM-280 | GZGKM-320 | ||
B | 1200 | 1600 | 1800 | 2000 | 2200 | 2800 | 3200 | ||
B1 | 1250 | 1650 | 1850 | 2050 | 2250 | 2850 | 3250 | ||
H | 300 | 300 | 300 | 300 | 300 | 300 | 300 | ||
H1 | 900 | 900 | 950 | 950 | 950 | 1030 | 1030 | ||
H2 | -550 | -550 | -600 | -600 | -600 | -700 | -700 | ||
L | 1600 | 1600 | 1600 | 1600 | 1600 | 1600 | 1600 | ||
L1 | 1900 | 1900 | 1900 | 1850 | 1850 | 1850 | 1750 | ||
L2 | 250 | 250 | 250 | 300 | 300 | 300 | 400 | ||
L3 | 2200 | 2200 | 2200 | 2200 | 2200 | 2200 | 2200 |

蘇公網安備 32062102000184號